Bize Ulaşın 0 212 356 85 90
GÜRSOYLAR

Cortizo Alüminyum Kapı Sistemleri

MILLENIUM YANGIN KAPISI

Yangın dayanımı kategorisi EI260

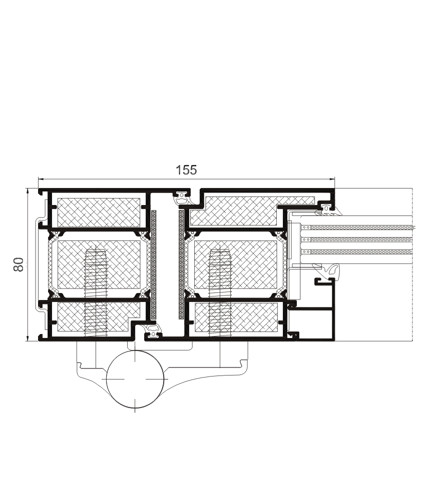
Kesitte 80 mm'lik hem yüz düz çizgisel profillerden oluşan sistem
Profil içlerindeki alev geciktirici izolasyon malzemelerin yanmazlık sağlaması ve bunun yanı sıra cam tarafından da biyolojik çözünür kağıt ve şişen bir bantla dilatasyon sağlanması gibi destekleyici uygulamalarıyla sistem,
60 dk yangın dayanımı sağlar.
Polyamid bariyer genişliği: 35 mm
Sabit alanlarla birleştirilebilme özelliği, anti-panik fonksiyonu, otomatik kapı kapatma sistemi ve yangın söndürme sektöründe resmi olarak onaylanmış kol / menteşe bulunan özel açılış donanımına sahiptir.

Maksimum cam kalınlığı : 48 mm
İçe Açılım: Tek veya çift kanat
Dışa Açılım: Tek veya çift kanat
Kesitler Kasa - 80 mm/ Kanat - 80 mm
Profil Kalınlığı: Kapı 2,2 mm
Polyamid bariyer genişliği 35 mm
Maksimum Ölçüler
Kanat: Genişlik (L): 1.500 mm - Yükseklik (H): 2.600 mm -
Maksimum Ağırlık / Kanat: 240 Kg

Çift renk yapılma imkanı vardır.
Renkli toz boya (RAL,hareli ve sable)
Ahşap görünümlü toz boya
Anti-bakteriyel toz boya
Eloksal

Özellikler

Geçirgenlik
Uw = 1,4 (W/m²K)
Lütfen cam kalınlıkları ve ebatları için danışınız.
Maksimum ses yalıtımı
Rw = 38 dB
Yangın dayanımı ve duman kontrolü
(EN 1364-1:2000) and (EN 1334-1:2010) CLASS EI 2 60 - C5
Test Döngüsü
(EN 13501-2:2009+A1:2010) C5: 200.000
Test referansı:
Kapı test referansı 1,35 x 2,35 m. 1 Kanat
Cam EI60 tekil cam 23'ten 25 mm'ye kadar

Teknik Döküman

Millenium Yangın Kapısı

Uygulamalar

GÜRSOYLAR

Cortizo Kapı Sistemleri | Millenium Yangın Kapısı

Gürsoylar | Cortizo Millenium Yangın Kapısı Gürsoylar | Cortizo Millenium Yangın Kapısı

GÜRSOYLAR

Cortizo Kapı Sistemleri | Millenium Yangın Kapısı

Gürsoylar | Cortizo Millenium Yangın Kapısı Gürsoylar | Cortizo Millenium Yangın Kapısı

GÜRSOYLAR

Cortizo Kapı Sistemleri | Millenium Yangın Kapısı

Whatsapp İletişim Whatsapp