Bize Ulaşın 0 212 356 85 90
GÜRSOYLAR

Cortizo Alüminyum Kapı Sistemleri

MILLENIUM PLUS 70 KAPI SİSTEMİ

Ticari bina ve yapılar için tasarlanmış,ısı yalıtımlı,hem yüz 70 mm derinlikli giriş kapı sistemidir.

Üzerindeki EN 179 & EN 1125 normlarına uygun anti panik aksesuarlarıyla acil çıkış olarak teşkil edilebilir.
Tekrar açılıp kapanmaya olan dayanım
(EN 1191:2000) : 1.000.000 kez
Maksimum cam kalınlığı: 54 mm
Gizli menteşe uygulama imkanı

Maksimum cam kalınlığı : 54 mm
İçe Açılım: Tek veya çift kanat
Dışa Açılım: Tek veya çift kanat
Otomatik Açılım: İçe ve dışa menteşeli tek kanat
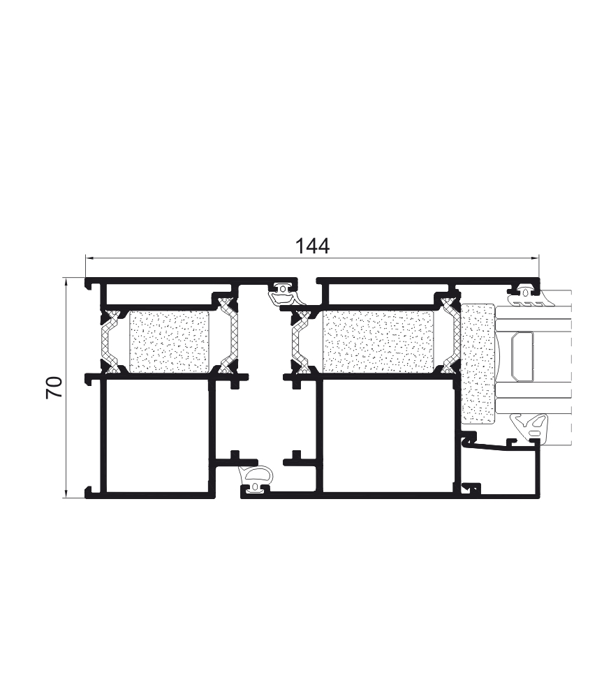
Kesitler: Kasa - 70 mm / Kanat - 70 mm
Profil Kalınlığı: Kapı 2,0 mm
Polyamid bariyer genişliği: 24 mm
Maksimum Ölçüler
Kanat: Genişlik (L): 1.800 mm -- Yükseklik (H): 3.000 mm
Kapı Genişlik (L): 1.500 mm -- Yükseklik (H): 3.000 mm
Gizli Menteşeli Kapı
Maksimum Ağırlık / Kanat: 220 Kg

Çift renk yapılma imkanı vardır.
Renkli toz boya (RAL,hareli ve sable)
Ahşap görünümlü toz boya
Anti-bakteriyel toz boya
Eloksal

Özellikler

Geçirgenlik
Uw = 0,9 (W/m²K)
Lütfen cam kalınlıkları ve ebatları için danışınız.
Hava geçirimsizliği
(EN 12207) CLASS 4
Su sızdırmazlığı
(EN 12208) CLASS 6A
Rüzgar yükü dayanımı
(EN 12210) CLASS C4
Kapı test referansı
1,20 x 2.30 m. 1 kanat
İklim etkisine dayanım
(EN 13049) CLASS 5 (max)
Test yapılan kapı referansı
1,80 x 2,20 m. 2 kanat. 3 + 3 Lamine cam
Tekrar açıp kapanmaya olan dayanım
(EN 1191) 1.000.000 kez
Kapı test referansı 2,10 x 2.20 m. 2 Kanat

Teknik Döküman

Millenium Plus 70 Kapı

Uygulamalar

GÜRSOYLAR

Cortizo Kapı Sistemleri | Millenium Plus 70 Kapı

Gürsoylar | Cortizo Millenium Plus 70 Kapı Gürsoylar | Cortizo Millenium Plus 70 Kapı

GÜRSOYLAR

Cortizo Kapı Sistemleri | Millenium Plus 70 Kapı

Gürsoylar | Cortizo Millenium Plus 70 Kapı Gürsoylar | Cortizo Millenium Plus 70 Kapı

GÜRSOYLAR

Cortizo Kapı Sistemleri | Millenium Plus 70 Kapı

Whatsapp İletişim Whatsapp