Bize Ulaşın 0 212 356 85 90
GÜRSOYLAR

Cortizo Alüminyum Kapı Sistemleri

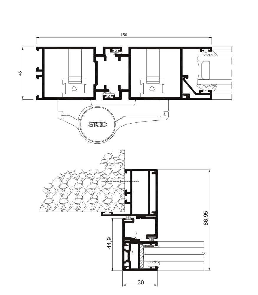
MILLENIUM PLUS 2000 KAPI SİSTEMİ

Ticari tesis ve binalar için 45 mm hem yüz kapı sistemidir.

2 versiyonu mevcuttur:
Millenium 2000 Kapı: Her kanatta 180 kg taşıma kapasitesi sağlayan, 2 veya 3 adet yüksek mukavemetli pimli veya kapazlama menteşeli sistem.
Millenium 2000 Otomatik Kapı: Kapıların otomatik kayar kapı olmasını sağlar.Bu sistem özellikle yüksek yaya sirkülasyonu olan (ofisler,alışveriş merkezleri,hastaneler) mekanların girişleri için tasarlanmıştır.Bekleme süreleri optimize edilirken,yoğun geçiş kadar acil durumlarda güvenlik unsuru da çözümlenmiş olunur.
Tek veya çift kanat imkanıyla,sabit veya hareketli açılım için iki opsiyon sağlar.Birincisi, 12 cm yükseklikte olup minimalist seçeneğiyle 7 cm yüksekliğinde kullanım imkanı sağlar.
Sisteme otomatik bir mekanizma entegre ederek otomatik menteşe açılım imkanı sağlar.

Maksimum cam kalınlığı : 30 mm
İçe Açılım: Tek veya çift kanat
Dışa Açılım: Tek veya çift kanat
Otomatik Açılım: Tek veya Çift Kayar Kanat , İçeri veya Dışa Açılır Tek Kanat
Çarpma Kapı: Tek veya Çift Kanat
Profil Kalınlığı: Kapı 2,0 mm
Maksimum Ölçüler
Kanat: Genişlik (L): 1.450 mm - Yükseklik (H): 3.000 mm - Tek kanat kapı;Tek açılım
Kapı Genişlik (L): 2.000 mm - Yükseklik (H): 3.000 mm - Otomatik sürme kapı
Genişlik (L): 1.100 mm - Yükseklik (H): 3.000 mm - Çarpma kapı
Maksimum Ağırlık / Kanat: 190 Kg - 120 Kg otomatik versiyon

Çift renk yapılma imkanı vardır.
Renkli toz boya (RAL,hareli ve sable)
Ahşap görünümlü toz boya
Anti-bakteriyel toz boya
Eloksal

Özellikler

Geçirgenlik
Uw = 2,3 (W/m²K)
Lütfen cam kalınlıkları ve ebatları için danışınız.
Maksimum ses yalıtımı
Rw = 38 dB
İklim etkisine dayanım
(EN 13049:2003) CLASS 5 (max)
Test yapılan kapı referansı
1,80 x 2,20 m. 2 Kanat. 3+3 Lamine Cam

Teknik Döküman

Millenium Plus 2000 Kapı

Uygulamalar

GÜRSOYLAR

Cortizo Kapı Sistemleri | Millenium Plus 2000 Kapı

Gürsoylar | Cortizo Millenium Plus 2000 Kapı Gürsoylar | Cortizo Millenium Plus 2000 Kapı

GÜRSOYLAR

Cortizo Kapı Sistemleri | Millenium Plus 2000 Kapı

Gürsoylar | Cortizo Millenium Plus 2000 Kapı Gürsoylar | Cortizo Millenium Plus 2000 Kapı

GÜRSOYLAR

Cortizo Kapı Sistemleri | Millenium Plus 2000 Kapı

Whatsapp İletişim Whatsapp