Bize Ulaşın 0 212 356 85 90
GÜRSOYLAR

Cortizo Alüminyum Kapı Sistemleri

Bİ- FOLD KATLANIR KAPI SİSTEMİ

Sahip olduğu yüksek cam kapasitesi ile ısı ve ses yalıtım performansını artırır.

Tek veya çift sayı kanatlardan oluşan,içe ve dışa açılım sağlayan,14 kanatlı konfigürasyonların kullanımına kadar geniş bir seçenek sunar.
Mekanlara girişleri kolaylaştırmak için alt kasa tamamen döşemeye gizlenebilir.

Maksimum cam kalınlığı : 45 mm
İçe Açılım: 14 Kanada Kadar Uygulanabilir
Dışa Açılım: 14 Kanada Kadar Uygulanabilir -- 90º Derece Kayıtsız Açılım İmkanı
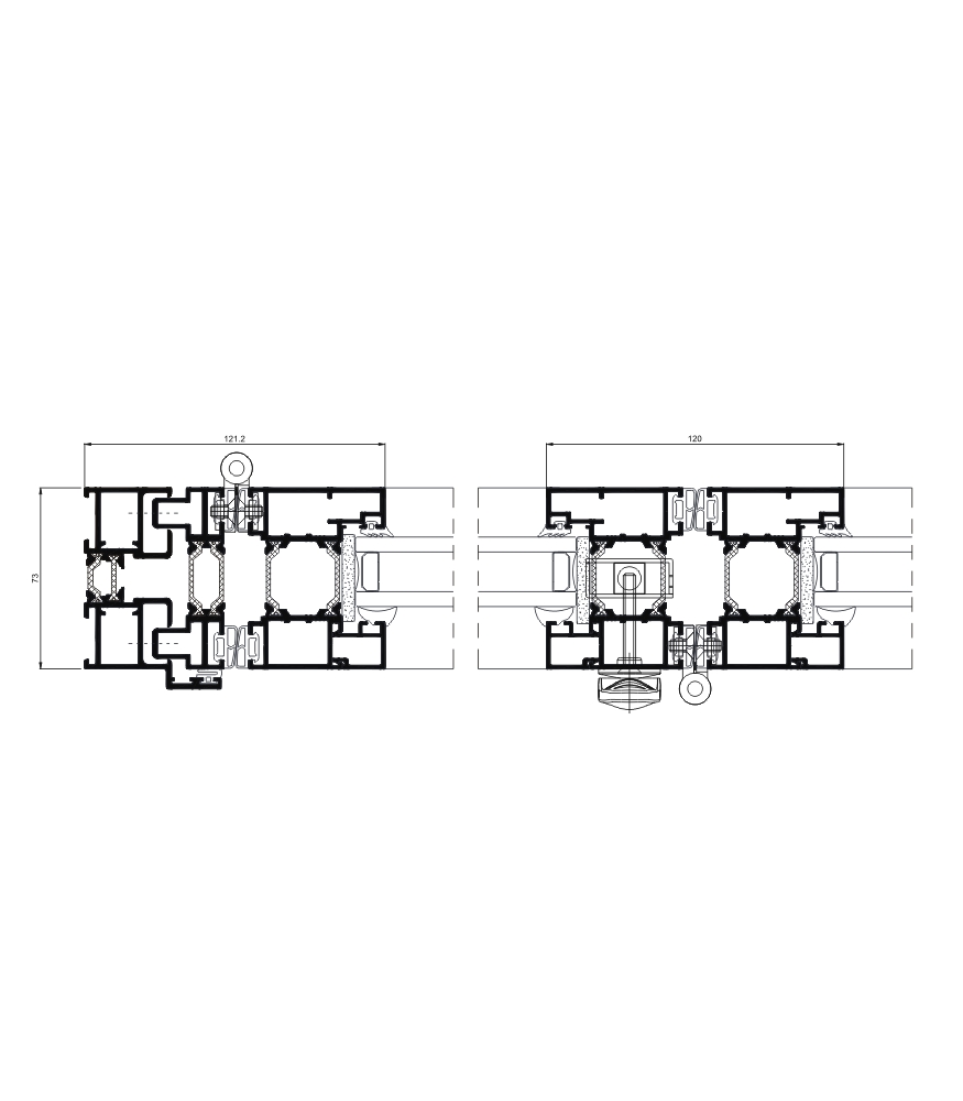
Kesitler: Kasa - 73 mm / Kanat - 73 mm
Profil Kalınlığı: Kapı 1,8 mm
Polyamid bariyer genişliği: Kasa - 20 mm / Kanat - 30 mm
Maksimum Ölçüler / Kanat: Genişlik (L): 1.200 mm -- Yükseklik (H): 3.000 mm
Maksimum Ağırlık / Kanat: 120 Kg

Çift renk yapılma imkanı vardır.
Renkli toz boya (RAL,hareli ve sable)
Ahşap görünümlü toz boya
Anti-bakteriyel toz boya
Eloksal

Özellikler

Geçirgenlik
Uw = 1,1 (W/m²K)
Lütfen cam kalınlıkları ve ebatları için danışınız.
Hava geçirimsizliği
(EN 12207) CLASE 4
Su sızdırmazlığı
(EN 12208) CLASE 9A
Rüzgar yükü dayanımı
(EN 12210) CLASE A3
Test referansı
2.70 x 2.53 m. 3 Kanat
Güvenlik Testi
(PAS 24): Onaylanmıştır.

Teknik Döküman

Bi-fold Katlanır Kapı Sistemi

Uygulamalar

GÜRSOYLAR

Cortizo Kapı Sistemleri | Bi-Fold Katlanır Kapı

GÜRSOYLAR

Cortizo Kapı Sistemleri | Bi-Fold Katlanır Kapı

GÜRSOYLAR

Cortizo Kapı Sistemleri | Bi-Fold Katlanır Kapı

GÜRSOYLAR

Cortizo Kapı Sistemleri | Bi-Fold Katlanır Kapı

Whatsapp İletişim Whatsapp